
Introduction
As-built drawings are blueprints used to Renovate specific buildings, bridges, roadways, and other structures. They detail the dimensions and specifications of the final structure so that Renovation can begin efficiently and on budget. As-built drawings are commonly used in renovation projects to verify the design before Renovation begins. An as-built drawing shows what something looks like after it has been built — not how it will look when it is designed. This makes them useful for evaluating changes made during construction instead of relying on a rendering or an architect’s drawings. Due to the increased adoption of BIM in construction projects these days we can also see the as-built BIM model, sometimes referred to as LOD 500 BIM models are also delivered as the final deliverables of the built structure.
We can create As-built drawings using laser scanning of the existing facility using LIDAR.
Industrial Site Drawings

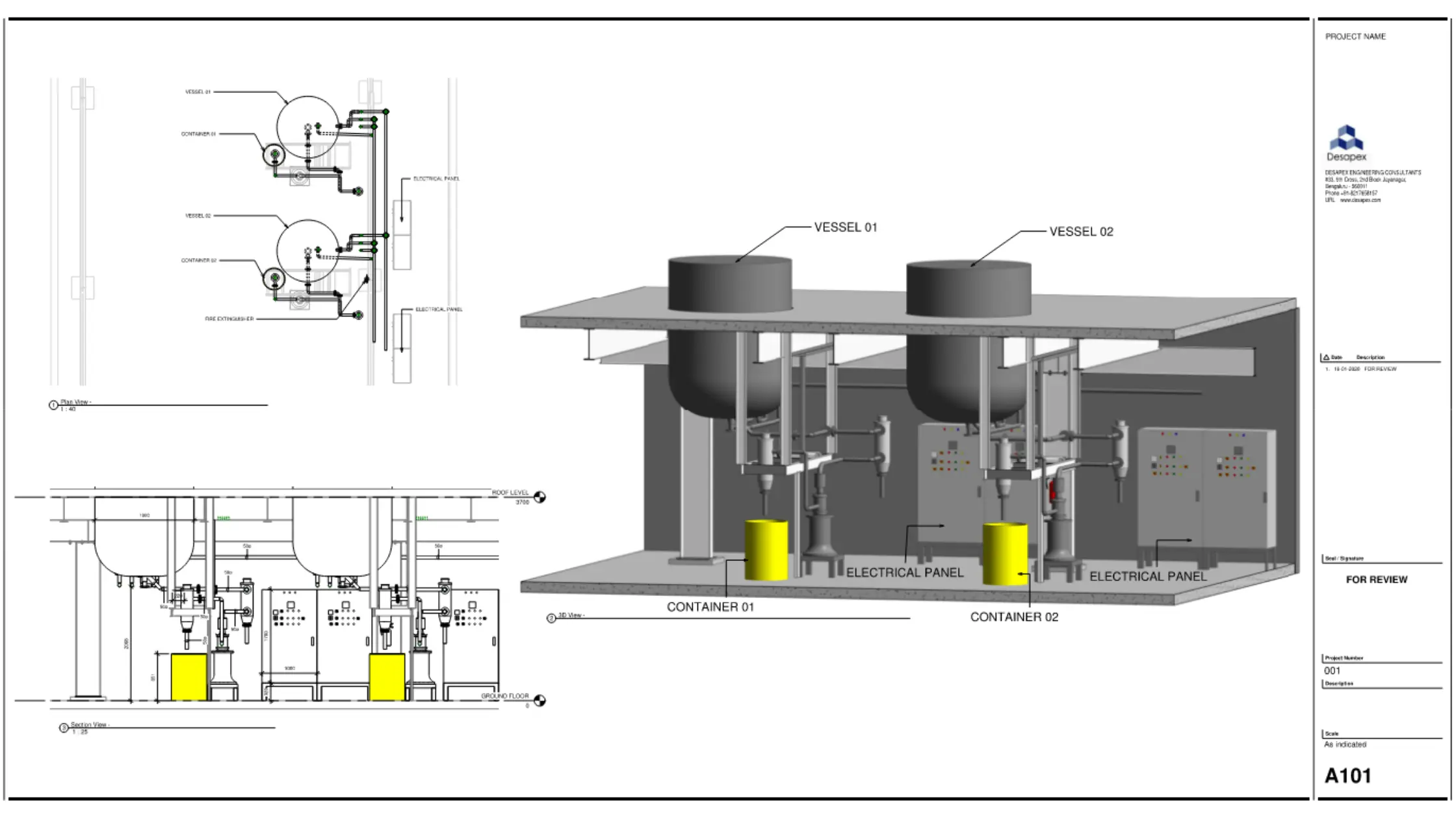
As-built drawings represent the site plan and elevations of an industrial building. They include the dimensions of the building, the location of utilities, and other details. Whether the building is an oil refinery, an aluminum plant, or a plastics plant, an as-built drawing provides the specifications of the site and the equipment. As-built drawings for industrial projects include details about the location of the foundation, the type of foundation, and the slope of the terrain. The plans also include details about the fence line, the road access, and the location of the retention pond.
Construction and Demolition Site Drawings

As-built drawings for construction projects include the plan and elevations of a site. They show the dimensions of the space, including the location of the building, utility lines, and landscaping. The construction and demolition site drawing shows the entire construction zone and the associated building permits. You can use this drawing to determine the required permits and plan your construction schedule. You can use it to make revisions to the building plans during the construction process.
Bridge As-Built Drawings

Bridge as-built drawings show the road and bridge elevation, the width of the road, the railing, and the guardrails. These plans help engineers and contractors make changes to the design of the road and bridge if necessary. Engineers use as-built drawings to make sure the plans for a bridge stay accurate during construction. They use the drawings to measure the changes that need to be made during construction.
Building Plans

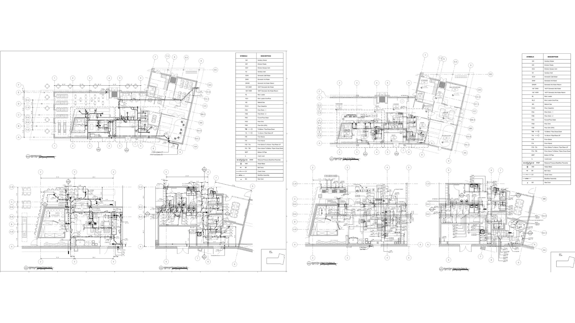
As-built drawings for buildings include the floor plan and elevations of a building. They show the dimensions of the space and the location of plumbing fixtures and other features. In construction projects, an as-built drawing provides a precise blueprint of the building. This makes changes to the building plan much easier, as there is less uncertainty about the dimensions of the space.
Water and Sewer Line Drawings

As-built drawings for water and sewer line projects include the pipe plan, the plan of the manhole, and the plan of the service connection. These drawings include details such as the type and size of the pipe, the direction of the flow, the capacity of the pipe, and the elevation of the manhole. A water or sewer line drawing shows the entire system from the source of water to the manhole. It shows the elevation of the manhole, the direction of the flow, the capacity of the pipe, and the type of pipe. Use as-built drawings to verify the design of the water and sewer line. Make sure that everything is as it should be. You can also use these drawings to make changes to the design.
Conclusion
As-built drawings or Record BIM Models are not just for construction projects. They are also useful for maintaining existing buildings.
The plans can show the location and type of fixtures, the piping, and the electric wiring. The plans can also show the location and type of wall covering and other materials used in the space. As-built drawings are useful tools for architects, engineers, and building owners. They allow engineers to make changes to the design during construction, while the architect can make sure everything is to plan. They can also be used by owners and managers to evaluate changes made to a building during construction. This can help avoid project delays and cost overruns.



